61 Tú Xương - Phường 7 - Quận 3 - TP.Hồ Chí Minh
BOTANICA- THIẾT KẾ NỘI THẤT CHUNG CƯ 3 PHÒNG NGỦ

BOTANICA- THIẾT KẾ NỘI THẤT CHUNG CƯ 3 PHÒNG NGỦ

  • NGÀY THIẾT KẾ 03-2019

  • TIẾN ĐỘ HOÀN THÀNH

  • KHÁCH HÀNG MRS TRÂM PHAN

  • ĐỊA CHỈ CĂN HỘ BOTANICA PREMIER, HCM

/**/ /**/

Chủ đầu tư: Ms. Trâm

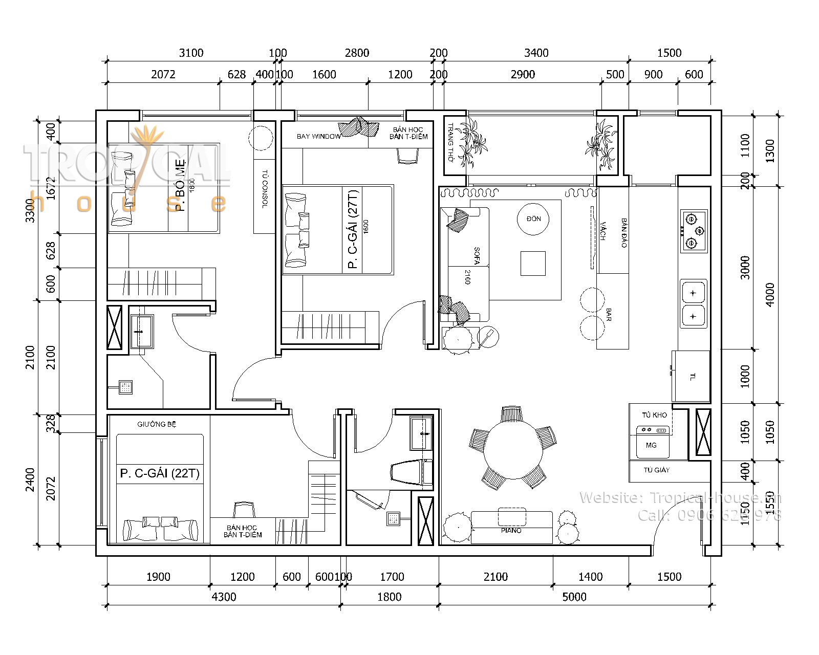
Diện tích: 91m2. Thiết kế căn hộ 3 phòng ngủ bàn giao hoàn thiện.

Phong cách thiết kế: Transitional

Phong cách thiết Transitional là sự kết hợp của đồ nội thất truyền thống và đương đại, từ khâu hoàn thiện vật liệu và vải tương đương với một thiết kế cổ điển, vượt thời gian. Các dòng đồ nội thất đơn giản nhưng tinh tế, nổi bật với các đường thẳng hoặc hồ sơ tròn. Vải cũng đa dạng như các mẫu đồ họa trên ghế sofa quá khổ và chenilles kết cấu trên khung gỗ bóng mượt.

Xem thêm các dịch vụ chính của Tropical House

Mô tả thiết kế nội thất 3 phòng ngủ BOTANICA

Màu sắc: Bảng màu chuyển tiếp dựa vào việc màu sắc ít để gợi lên một bầu không khí sạch sẽ, thanh thản. Màu nâu sẫm có thể thêm chiều sâu cho sự cân bằng trung tính của taupe, tan và vani.

Phụ kiện: Cách tiếp cận tối giản được thực hiện với các phụ kiện được lựa chọn cẩn thận - một chậu phong lan uốn cong duyên dáng trước cửa sổ, tấm thảm đặt dưới các đồ nội thất với khung màu đen và bạc đơn giản, những chiếc đèn trần tinh tế . Loại nhóm này cung cấp một đối trọng với đồ nội thất.

Vải: Việc ít màu sắc tạo ra các kết cấu thú vị, chẳng hạn như vải nhung màu ô liu được tìm thấy trên ghế sofa có màu nâu được sử dụng trên hai chiếc ghế bên. Các lựa chọn tốt khác cho một không gian chuyển tiếp.

Nội thất: Đường cong kết hợp với các đường thẳng trong một phong cách nội thất chuyển tiếp. Cái nhìn cân bằng cả hai thuộc tính nam tính và nữ tính cho một thiết kế hiện đại thoải mái. Quy mô của các mảnh là phong phú nhưng không đáng sợ. Ít trang trí và trang trí giữ tập trung vào sự đơn giản và tinh tế của thiết kế.