Landmark 1- có thể nói là một trong những tòa tháp có vị trí trung tâm đẹp nhất dự án Vinhomes Central Park, nằm bên cạnh tháp Landmark 81- top 10 tòa nhà cao nhất thế giới với 81 tầng, cùng với view nhìn tuyệt đẹp ra bến du thuyền 5 sao đẳng cấp trên dòng sông Sài Gòn.
Căn hộ góc sở hữu 3 phòng ngủ, diện tích 140m2, bàn giao hoàn thiện. Để cải tạo lại không gian một cách tối ưu nhất các kiến trúc sư đã đưa ra phương án khá phức tạp, bắt buộc phải có sự chấp thuận của ban quản lý tòa nhà và thuyết phục được gia chủ.
Công việc khó khăn nhất bắt đầu từ việc tháo dỡ các vách tường gạch, lột bỏ sàn gạch hiện trạng, di chuyển hệ thống điều hòa trung tâm, đi lại hệ thống cấp thoát nước…
Về phong cách thiết kế nội thất, kiến trúc sư lựa chọn phong cách thiết kế nội thất tối giản (minimalism), dùng gam màu trung tính và đơn giản hóa mọi đường nét, phù hợp với lối sống nhẹ nhàng của gia chủ.
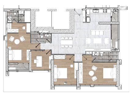
Mặt bằng bố trí nội thất hiện hữu
.jpg)
Dễ dàng nhận thấy view nhìn ra công viên bị che lấp bởi bức tường “án ngữ”, luồng giao thông tại khu bàn ăn chật chội, các phòng ngủ có hệ cửa sổ rộng không tận dụng được view nhìn ra sông
.jpg)
Thay đổi chức năng phòng làm việc thành phòng giặt, ưu tiên diện tích cho các hệ tủ
.jpg)
.jpg)
Phòng khách có view nhìn rộng
.jpg)
Không gian mở giữa phòng sinh hoạt chung – tiếp khách và bàn ăn trở thành vị trí trung tâm của căn hộ; khai thác tối đa lợi thế cảnh quan, tận dụng sự thông thoáng, ánh sáng tự nhiên
.jpg)
Một góc nhìn ra công viên từ vị trí phòng khách
.jpg)
Phòng ngủ chính được thiết kế theo hướng đơn giản tinh tế, gọn gàng ngăn nắp với hệ tủ áo dài đặt âm tường vừa tận dụng không gian vùa tạo cảm giác thông thoáng, tất cả kết hợp với ánh sang tự nhiên được lấy từ cửa sổ lớn tạo nên một căn phòng tràn đầy sức sống.
.jpg)
Từ phòng ngủ chính, nhìn được quang cảnh sông Sài Gòn qua hệ cửa sổ thoáng rộng
.jpg)
Phòng tắm gọn gàng, đơn giản, có hộc tủ và ngăn kéo tiện dụng.
.jpg)
.jpg)
Phòng ngủ con gái cũng được thiết kế dựa trên sự đơn giản, công năng nhưng không kém phần tinh tế.
.jpg)
Bài trí các vật dụng như giường, tủ sách, bàn học gọn gàng, tận dụng tối đa không gian. Bỏ qua vẽ ngột ngạt của hiện hữu căn phòng đã trở nên rộng rãi hơn.
Xem thêm dịch vụ:
- Thiết kế nội thất nhà phố đẹp
- Công ty thiết kế nội thất uy tín tại tphcm
- Thiết kế nội thất nhà phố 4 tầng