Khi chuyển về ở căn hộ có diện tích 80m2 này, anh Hưng đã nghĩ ngay đến việc sẽ nhờ đến các chuyên gia thiết kế nội thất để giúp thực hiện những ý tưởng từ lâu của mình. Chị yêu thích một không gian trên tầng cao, đủ bình lặng mỗi khi màn đêm buông xuống để cùng nhau ăn bữa tối ấm cúng, cùng nhau ngắm thành phố yên bình khi đã về khuya..jpg)
Kiến trúc sư công ty nhận thiết kế và thi công ngôi nhà của anh Hưng cho biết, trước khi thi công đã ngồi cùng anh, trò chuyện rất lâu, để có thể cảm nhận trọn vẹn những mong muốn của anh. Chủ nhà yêu thích tông màu trắng, con gái chị lại thích màu hồng. anh muốn không gian có đủ các công năng cần thiết, đồ đạc phải luôn gọn gàng. Không gian sống có diện tích vừa đủ cho những sinh hoạt hàng ngày. Mọi người khi bước chân về nhà, sẽ cảm nhận được sự ấm cúng, gần gũi lan tỏa. Khi đi đâu xa sẽ nhớ về một cuộc sống an yên, tự tạo do chính các thành viên trong nhà tạo nên.
.jpg)
Không gian phòng khách được bố trí gọn gàng đơn gian đúng theo yêu cầu của anh Hưng, phần cửa ra ban công được cải tạp nới rộng hết cỡ để lấy được view nhìn toàn cảnh.
.jpg)
Tủ giày được đặt ngay kế bên cửa chính của căn hộ, kts thiết kế đã sử dụng vách ngăn một cách hoàn toàn hợp lý để ngăn cách tủ giày và khu đọc sách tạo cảm giác riêng tư cho chủ nhà.
.jpg)
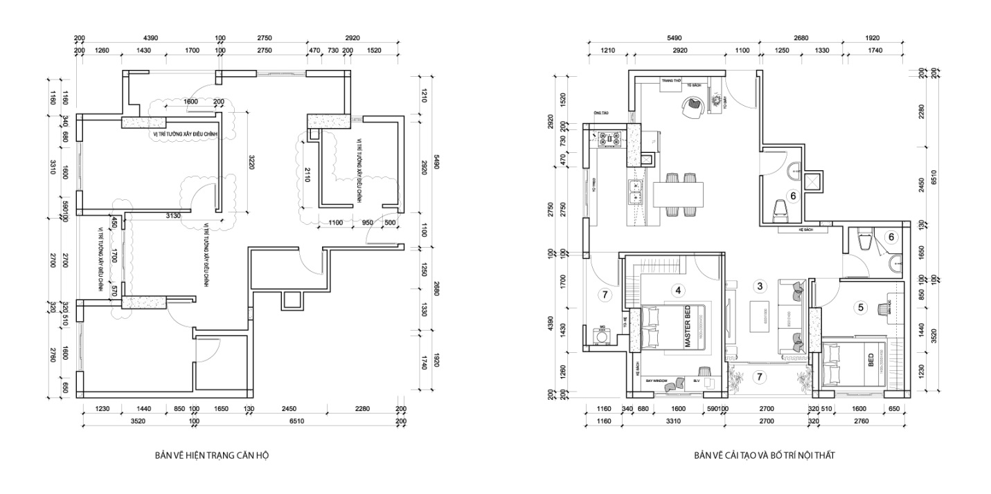
Ngay khi đi khảo sát căn hộ kts của tropical đã tư vấn liền cho chủ nhà phải phá bỏ bức vách ngăn của bếp hiện trạng để tận dụng diện tích và mở rộng tối đa không gian phá bỏ cảm giác chật chội trong căn nhà.
.jpg)
Không gian ăn uống của gia đình được thiết kế khá ấn tượng với điểm nhấn là màu đen của tường và tủ bếp ,bàn ăn được gác lên tủ bếp kết hợp với bộ ghế của mutoo furniture rất cá tính, khu đọc sách tuy ở gần bàn ăn nhưng vẫn được tách biệt riêng bởi vân gỗ của hệ tủ kết hợp với ánh sáng ấm tạo nên một góc nhỏ không thể tuyệt vời hơn.
.jpg)
Wow một cái bếp rất ấn tượng phải không các bạn, chúng tối sử dụng vách kiếng cường lực trong suốt để ngăn cách không gian, vừa ngăn nước vừa dễ lau chùi lại lấy được ánh sáng tự nhiên vào khu bàn ăn phí trong.
.jpg)
Phòng ngủ nhỏ nhưng rất tiện nghi và đẹp mắt với sự kết hợp gam màu trắng – xám ở nhiều cấp độ khác nhau. Căn phòng không chỉ chú trọng đến màu sắc mà còn được xử lý nội thất thông minh để không gian được gọn gàng, rộng rãi. Cũng như phòng khách, ở đây còn có thêm những chậu cây xanh để không gian thêm mềm mại.
.jpg)
Hệ tủ cao sát tường được sơn trắng giúp không gian trong phòng gọn gàng.
.jpg)
Màu hồng thường được các bậc phụ huynh lựa chọn khi thiết kế phòng ngủ cho các bé gái. Bởi, đây là gam màu mà các bé gái yêu thích nhất đồng thời màu hồng cũng đem đến sự dễ thương và tạo nên không gian điệu đà như một nàng công chúa nhỏ.
.jpg)
Cũng như phòng ngủ chính, phòng bé gái cũng được thiết kế gọn gàng công năng, tủ đồ được đặt trên giường, dưới giường có ngăn kéo tất cả đều chỉnh chu làm cho không gian rộng ra trông thấy, kế bên đó là hệ bàn học dễ thương xinh xắn được thiết kế ngẫu nhiên tạo điểm nhấn cho căn phòng.
Xem thêm dịch vụ:
- Thiết kế nội thất nhà phố Scandivanian
- Công ty thiết kế nội thất uy tín tại tphcm
- Thi công nội thất nhà phố Scandivanian
- Thiết kế nội thất nhà phố 4 tầng
- Tư vấn thiết kế nội thất Scandivanian